L O A D I N G

3-4 pokoje/ Zawady/ Komórka/ Garaz/ Garderoba

Polska, Warszawa, Syta
Szczegóły
Pokoi 3
Rynek: Rynek wtórny
Rodzaj transakcji Na sprzedaż
ID ogłoszenia: 34964544240
Powierzchnia 106.50 M2
Rok budowy: 2006

Opis

ENG below

106,5 m² | możliwość 4 pokoi | garaż | zielone osiedle | Zawady – ul. Syta

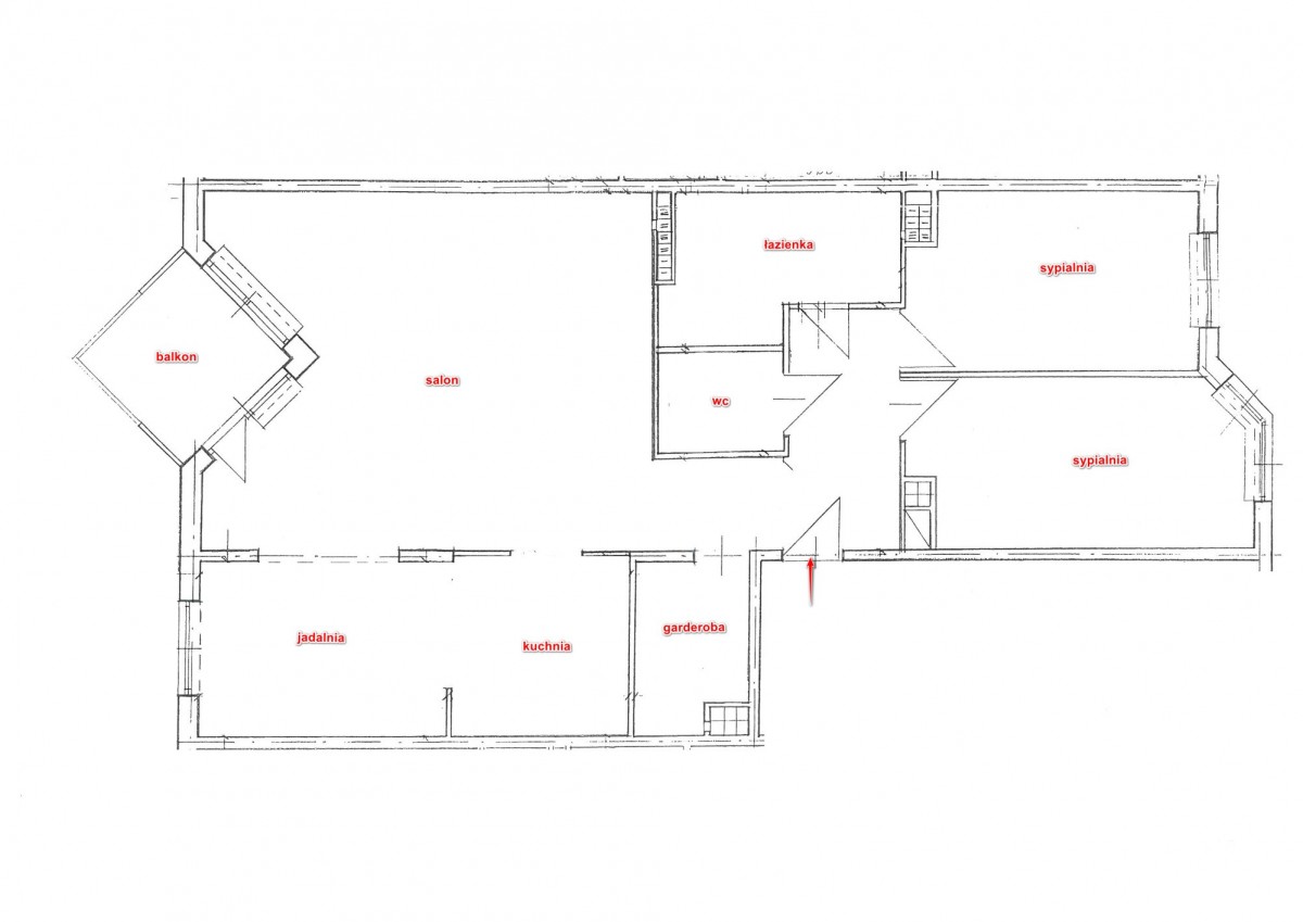
Na sprzedaż przestronne mieszkanie 106,5 m² z możliwością wydzielenia 4 pokoju, położone na kameralnym, zamkniętym osiedlu przy ul. Sytej w Warszawie (Zawady / Wilanów).

Mieszkanie znajduje się w spokojnej, zielonej części miasta, a jednocześnie z szybkim dostępem do infrastruktury Miasteczka Wilanów.

Dużym atutem nieruchomości jest funkcjonalny układ, który pozwala na łatwe wydzielenie czwartego pokoju z obecnej części jadalnianej, co czyni mieszkanie idealnym dla rodziny lub jako inwestycję.

Najważniejsze informacje
* powierzchnia: 106,5 m²
* liczba pokoi: 3 (z możliwością 4 pokoju)
* piętro: 2 / 3
* rok budowy: 2006
* budynek bez windy
* kameralna klatka – tylko 3 mieszkania na piętrze

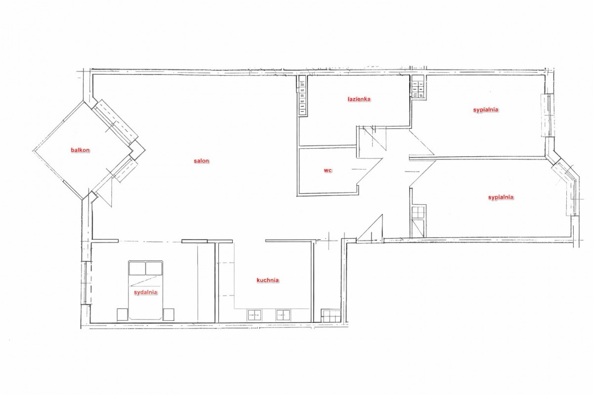
Układ mieszkania
* duży salon z aneksem kuchennym i jadalnią
(możliwość wydzielenia dodatkowego pokoju)
* 2 ustawne sypialnie
* łazienka z wanną i prysznicem
* oddzielna toaleta
* garderoba
* przestronny korytarz z dużą szafą w zabudowie

Mieszkanie jest dwustronne, dzięki czemu jest bardzo dobrze doświetlone:
* salon z kuchnią oraz jadalnią – zachód
* sypialnie – wschód

Standard wykończenia
W mieszkaniu zastosowano naturalne, wysokiej jakości materiały:
* podłoga – naturalna deska Merbau
* blat kuchenny – marmur naturalny
* marmurowe parapety
* łazienka i toaleta wykończone marmurem Green Forest

Mieszkanie sprzedawane jest z umeblowaniem.
Stan: bardzo dobry – do odświeżenia.

Dodatkowo
* komórka lokatorska – 20 000 zł
Możliwość dokupienia:
* miejsca postojowego w garażu podziemnym – 35 000 zł
* dużej komórki (przerobione miejsce postojowe) – 35 000 zł
z możliwością przywrócenia funkcji miejsca parkingowego.

Osiedle

Osiedle jest zamknięte, kameralne i otoczone zielenią.
Do dyspozycji mieszkańców:
* boisko sportowe
* plac zabaw
* teren rekreacyjny z miejscem na ognisko
* bezpośrednie zejście do rzeki Wilanówki

To wyjątkowa przestrzeń pozwalająca na spacery, jazdę na rowerze czy pływanie kajakiem, bez konieczności wyjeżdżania z miasta.

Lokalizacja – Zawady / Wilanów

Okolica łączy spokój i naturę z wygodnym dostępem do miasta.

W pobliżu:
* przystanek autobusowy Syta – linie 163, 164, 263
* szybki dojazd do Miasteczka Wilanów
* sklepy i punkty usługowe
* restauracje i kawiarnie

Dodatkowo w okolicy:
* Łąka Zawady
* trasy spacerowe i rowerowe
* tereny nad Wilanówką

Media
* ogrzewanie – kotłownia gazowa
* ciepła woda – piec gazowy dla budynku

Zapraszam na prezentację

Mieszkanie idealne dla osób szukających dużej przestrzeni w zielonej i spokojnej części Warszawy, z możliwością aranżacji 4 pokoi.

Przedstawiona oferta ma charakter informacyjny i nie stanowi oferty handlowej w rozumieniu art. 66 §1 Kodeksu cywilnego.

————————————————————————————————–

106.5 m² | Option to create 4 rooms | Garage | Green estate | Zawady – Syta Street

For sale: a spacious 106.5 m² apartment with the possibility of creating a 4th room, located in a quiet, gated residential estate at 177 Syta Street in Warsaw (Zawady / Wilanów district).

The apartment is situated in a peaceful, green part of the city while still offering quick access to the infrastructure of Miasteczko Wilanów and central Warsaw.

A major advantage of the property is its functional layout, which allows an additional room to be easily separated from the dining area, making the apartment ideal for families or as an investment property.

Key information

  • total area: 106.5 m²
  • number of rooms: 3 (possibility to create a 4th room)
  • floor: 2 / 3
  • building year: 2006
  • building without elevator
  • very intimate staircase – only 3 apartments per floor

Apartment layout

  • large living room with open kitchen and dining area
  • (possibility to create an additional room)
  • 2 comfortable bedrooms
  • bathroom with both bathtub and shower
  • separate toilet
  • walk-in wardrobe
  • spacious hallway with built-in wardrobe

The apartment is dual-aspect, providing excellent natural light

  • living room – west exposure
  • bedrooms – east exposure

Finishing standard

The apartment was finished using high-quality natural materials:

  • flooring – natural Merbau wood
  • kitchen countertop – natural marble
  • marble window sills
  • bathroom and toilet finished with Green Forest marble

The apartment is sold fully furnished.

Condition: very good – may require minor refreshing depending on preferences.

Additional features

  • storage unit – PLN 20,000

Optional purchase:

  • underground parking space – PLN 35,000
  • large storage room / utility space (converted parking space) – PLN 35,000 with the possibility to restore it to a parking space.

Residential estate

The estate is gated, intimate and surrounded by greenery.

Residents have access to:

  • sports field
  • playground
  • recreational area with a fire pit
  • direct access to the Wilanówka River

This unique location allows for walking, cycling or kayaking, without leaving the city.

Location – Zawady / Wilanów

The area combines peaceful surroundings with convenient city access.

Nearby:

  • Syta bus stop – lines 163, 164, 263
  • quick access to Miasteczko Wilanów
  • grocery stores and local services
  • restaurants and cafés

Additional nearby attractions:

  • Łąka Zawady natural area
  • numerous walking and cycling paths
  • green riverside areas along the Wilanówka River

Utilities

  • heating: gas boiler room
  • hot water: shared gas system for the building

Viewing

Feel free to contact us to arrange a viewing.

This apartment is an excellent option for buyers looking for spacious living in a quiet, green part of Warsaw, with the possibility of creating four rooms.

The above offer is for informational purposes only and does not constitute a commercial offer within the meaning of Article 66 §1 of the Polish Civil Code.

Informacje dodatkowe

Podobne ogłoszenia

Masz pytania?

Skontaktuj się z naszym doradzcą