L O A D I N G

3-pokojowe mieszkanie z tarasem w zielonym Wilanow

Polska, Warszawa, Jara
Szczegóły
Pokoi 3
Rynek: Rynek wtórny
Rodzaj transakcji Na sprzedaż
ID ogłoszenia: 34964547151
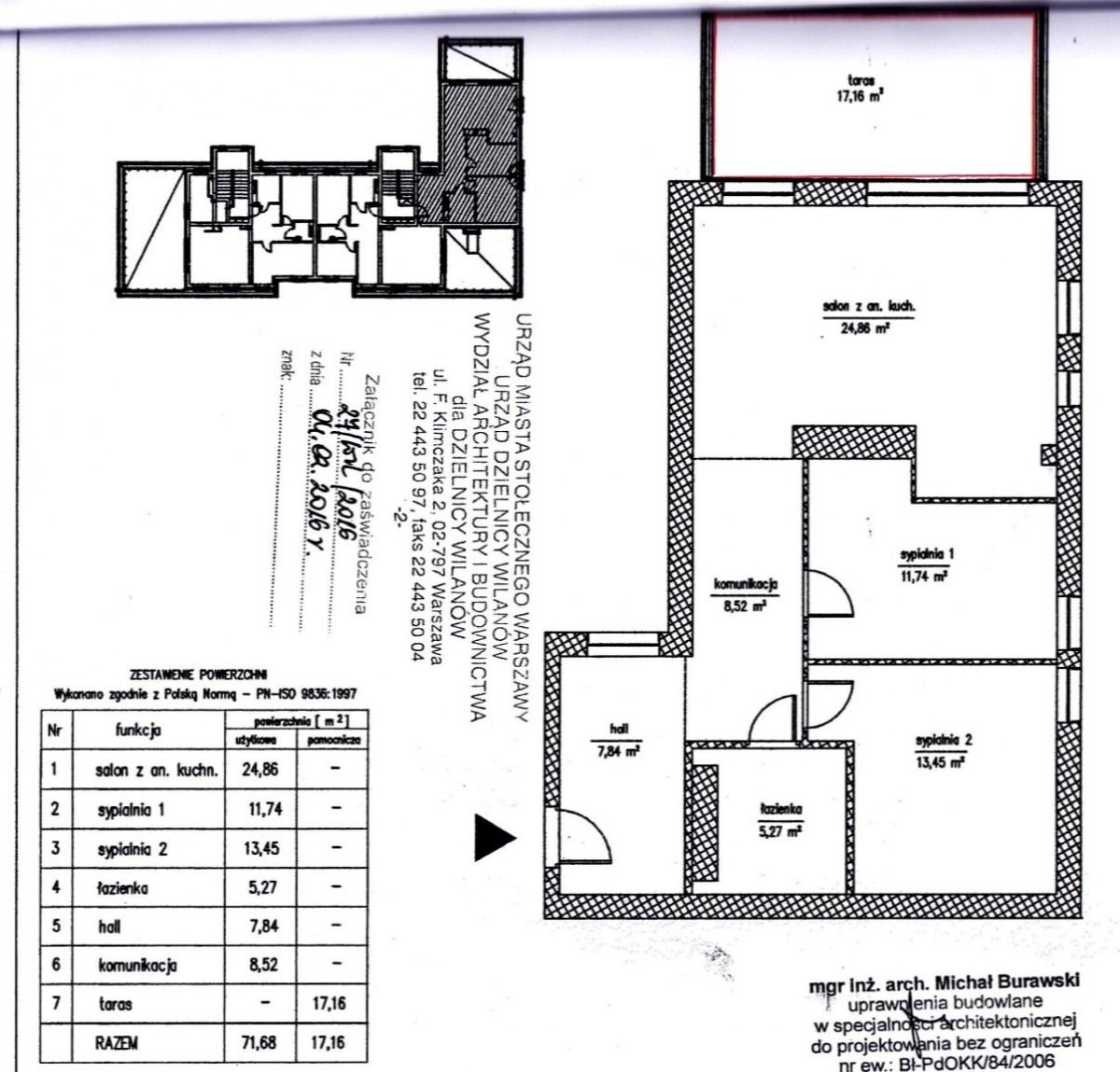
Powierzchnia 71.68 M2
Rok budowy: 2016

Opis

Na sprzedaż oferujemy wyjątkowe mieszkanie o powierzchni 71,68 m² z tarasem o powierzchni 17,16 m², położone na 2 piętrze w kameralnym ogrodzonym budynku (bez windy). Lokal wyróżnia się ciekawym, dopracowanym wystrojem w stylu eklektycznym, który łączy nowoczesność z designerskimi detalami i wysokiej jakości materiałami, a także bogatymi przestrzeniami dodatkowymi: aż 2 komórki lokatorskie, miejsce parkingowe podziemne + miejsce parkingowe naziemne na zamkniętym terenie ogrodzonej nieruchomości.

MIESZKANIE składa się z (plan mieszkania w sekcji zdjęcia):
1. przestronnego salonu 25 m2 z wyjściem na taras, oraz sporym i dobrze zagospodarowanym aneksem kuchennym
2. dwóch sypialni 12 m2 i 13,5 m2,
3. łazienki 5,3 m3,
4. funkcjonalnego przedpokoju z zabudową szaf 16 m2.
Z salonu prowadzi wyjście na przestronny taras o powierzchni 17,16 m², skierowany na stronę zachodnią, co zapewnia dużo naturalnego światła i przyjemne popołudniowe słońce.

POWIERZCHNIE PRZYNALEŻNE:
1. Komórki lokatorskie – 2 sztuki
2. Miejsce parkingowe – podziemne 1 sztuka
3. Miejsce Parkingowe – Naziemne – 1 sztuka

Do mieszkania przynależą również dodatkowe udogodnienia znacząco podnoszące komfort codziennego życia:
– dwie komórki lokatorskie, zapewniające dodatkową przestrzeń do przechowywania,
– miejsce parkingowe w garażu podziemnym, drugie miejsce parkingowe naziemne na terenie ogrodzonego osiedla.
Takie rozwiązanie jest niezwykle praktyczne – pozwala wygodnie parkować dwa samochody lub zapewnia dodatkowe miejsce dla gości.

STANDARD WYKOŃCZENIA:
Mieszkanie zostało wykończone z dużą dbałością o detale oraz z wykorzystaniem wysokiej jakości materiałów:
– w pokojach panele o najwyższej klasie ścieralności A6,
– w kuchni i przedpokoju gres,
– w łazience heksagonowe płytki z kolekcji Macieja Zienia,
– nowe okna PCV w kolorze orzech,
– designerska szklana ściana z wysokiej jakości białego szkła, zadrukowana plakatami filmowymi.

KUCHNIA: Stylowa i funkcjonalna kuchnia wyposażona jest w:
kamienne blaty, fornirowane meble z drzewa mango, sprzęt AGD w zabudowie: lodówka, płyta indukcyjna, piekarnik, zmywarka.
SALON: Wyjątkowy charakter wnętrza podkreśla ceglana ściana z bio-kominkiem, tworząca ciepły i przytulny klimat.
SYPIALNIA: W sypialni znajduje się łoże małżeńskie, dwie szafki nocne, pojemna szafa.
PRZEDPOKÓJ: wyposażony jest w pojemne szafy z lustrami, zaprojektowane i wykonane przez Chobot Design, zapewniające dużo miejsca do przechowywania.

OPŁATY:
1. CZYNSZ – 707 zł stały przez cały rok, zawiera zaliczkę na wodę (zimna), ścieki oraz wywóz śmieci
2. PRĄD
3. GAZ

STAN SPRAWNY:
1. Odrębna własność
2. Księga wieczysta
3. Możliwość kredytowania

LOKALIZACJA:
Nieruchomość położona jest w cichej, zielonej i bezpiecznej części Wilanowa, idealnej dla osób ceniących spokój i bliskość natury.
W okolicy znajdują się:
plaża nad Wisłą – ok. 10 minut spacerem,
Pałac w Wilanowie,
liczne restauracje i miejsca do rekreacji,
siłownia, fitness club Calypso, squash, klub tenisowy,
stadnina koni, pole golfowe, zajęcia jogi,
przedszkole, szkoła, sklep Dino.

KOMUNIKACJA:
2 linie autobusowe w odległości ok. 150 m od budynku,
3 minuty samochodem do centrum handlowego Plac Vogla i Multibox.

PODSUMOWANIE:
To mieszkanie będzie doskonałym wyborem dla osób poszukujących oryginalnego wnętrza, wysokiego standardu wykończenia oraz spokojnej, zielonej lokalizacji, a jednocześnie z wygodnym dostępem do infrastruktury miejskiej.

CENA (mieszkanie + dodatkowo płatne powierzchnie):
– mieszkanie 18.999,00 PLN / m2
– komórka lokatorska 20.000,00 pln sztuka (są dwie sztuki)
– miejsce parkingowe podziemne 50.000,00 PLN
– miejsce parkingowe naziemne 30.000,00 PLN

Informacje dodatkowe

Podobne ogłoszenia

Masz pytania?

Skontaktuj się z naszym doradzcą