L O A D I N G

Dom w budowie – Śrem – super lokalizacja !!

Polska, Śrem,
Szczegóły
Pokoi
Rynek: Rynek wtórny
Rodzaj transakcji Na sprzedaż
ID ogłoszenia: 34964508821
Powierzchnia 297.48 M2
Rok budowy:

Opis

Dom w budowie – w świetnej lokalizacji !!

Śrem – ul. Piaskowa

Przedstawiam Państwu na sprzedaż budynek jednorodzinny, wolnostojący na działce o powierzchni 1005 m2 w Śremie na ul. Piaskowej.

Cicho, spokojnie i przytulnie – tak można opisać nieruchomość, znajdującą się w tym urokliwym miejscu.

Miejsce zapewniające nie tylko wygodę mieszkania w dogodnej lokalizacji, ale także poczucie bezpieczeństwa i spokoju, która przekłada się na jakość codziennego życia.

Dom oferuje przestronne i jasne pomieszczenia – bardzo dobrze doświetlone (duże otwory okienne).

Dom murowany w technologii tradycyjnej w stanie surowym, otwartym, bez poszycia dachu.

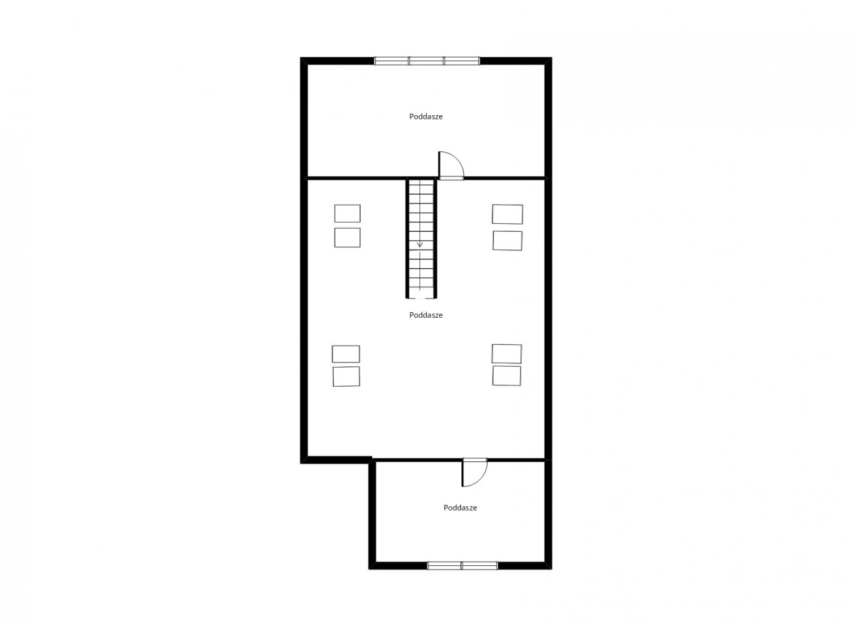
Układ pomieszczeń wg projektu:

PARTER: 176,42 m2

– wiatrołap 7,55 m2
– kuchnia 11,02 m2
– pokój dzienny z jadalnią 37,58 m2
– pokój 15,31 m2
– pokój 15,36 m2
– komunikacja 13,68 m2
– łazienka 10,10 m2
– pokój 18,37 m2
– WC 1,89 m2
– kotłownia 9,34 m2
– garaż dwustanowiskowy 36,22 m2

PIĘTRO – do własnej adaptacji pomieszczeń

– klatka schodowa 1,98 m2
– całość poddasza 119,08 m2

Powierzchnia całkowita: 297,48 m2

Dostępne media:
woda, prąd, gaz (w drodze), kanalizacja, światłowód (w drodze)

Niewątpliwym atutem nieruchomości jest fakt, że jest to dom wolnostojący, charakteryzujący się ergonomicznym układem, który zapewnia komfort, wygodę i funkcjonalność. Dodatkowym atutem jest oczywiście garaż dwustanowiskowy.

Zapraszam do kontaktu oraz na prezentację nieruchomości.

Informacje dodatkowe

Podobne ogłoszenia

Masz pytania?

Skontaktuj się z naszym doradzcą