L O A D I N G

Dwupokojowe | Ciche | Nowe Budownictwo.

Polska, Warszawa, Czerniakowska
Szczegóły
Pokoi 2
Rynek: Rynek wtórny
Rodzaj transakcji Na sprzedaż
ID ogłoszenia: 34964522462
Powierzchnia 54.90 M2
Rok budowy: 2007

Opis

Zapraszam do zapoznania się z ofertą sprzedaży 2-pokojowego, przestronnego mieszkania zlokalizowanego na Mokotowie, przy ul. Czerniakowskiej, w sąsiedztwie szkoły sióstr Nazaretanek oraz 15 min spacerem do Łazienek Królewskich.

Atuty mieszkania:
Powierzchnia i układ: 2 pokoje z otwartą kuchnią na salon – idealne dla singla, pary lub jako inwestycja.
Garderoba – praktyczna przestrzeń do przechowywania.
Wysokie sufity (3 m) – poczucie przestrzeni i prestiżowego charakteru wnętrza.
Podłogi z parkietu – klasyczna elegancja i trwałość.
Mieszkanie w pełni umeblowane – gotowe do wprowadzenia się bez dodatkowych nakładów.

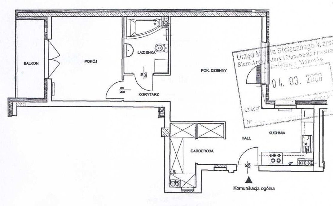
Mieszkanie składa się z przestronnego salonu, kuchni otwartej na salon, sypialni, łazienki, garderoby oraz balkonu.
Wartymi podkreślenia zaletami apartamentu są duże, drewniane okna, wysokie pomieszczenia (3 metry wysokości), przestronna garderoba, balkon z widokiem na zieleń, a także drewniany parkiet położony we wszystkich pomieszczeniach.

BUDYNEK/OSIEDLE
Mieszkanie znajduje się w kameralnym i nowoczesnym apartamentowcu wybudowanym przez dewelopera DEMBUD w 2007 roku. Budynek oddalony jest od głównej ulicy co sprawia, że w mieszkaniu jest cicho. Nieruchomość posiada całodobową ochronę oraz monitoring.

NIERUCHOMOŚĆ
Mieszkanie o powierzchni 54,90 m2 składa się z:
-salonu,
-sypialni,
-otwartej kuchni,
-łazienki,
-garderoby,
-przedpokoju.

Powierzchnia dodatkowa:
-balkon (4,5 mkw.)

Czynsz administracyjny wynosi około 1000zł.
Ekspozycja okien- południowy-zachód, wschód.

OKOLICA
Nieruchomość położona w spokojnej okolicy, z dala od hałasu głównej ulicy. W sąsiedztwie znajduje się prestiżowa szkoła sióstr Nazaretanek, a w zasięgu spaceru dostępne są Łazienki Królewskie- idealne miejsce na wypoczynek. Lokalizacja zapewnia także bardzo dobrą komunikację z pozostałymi częściami miasta.

Zapraszam na prezentację nieruchomości.

Informacje dodatkowe

Podobne ogłoszenia

Masz pytania?

Skontaktuj się z naszym doradzcą