L O A D I N G

Lokal biurowy w centrum Warszawy/ ,,PASTA”

Polska, Warszawa, Zielna
Szczegóły
Pokoi
Rynek: Rynek wtórny
Rodzaj transakcji Do wynajecia
ID ogłoszenia: 34964543097
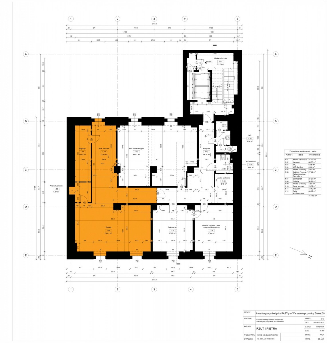
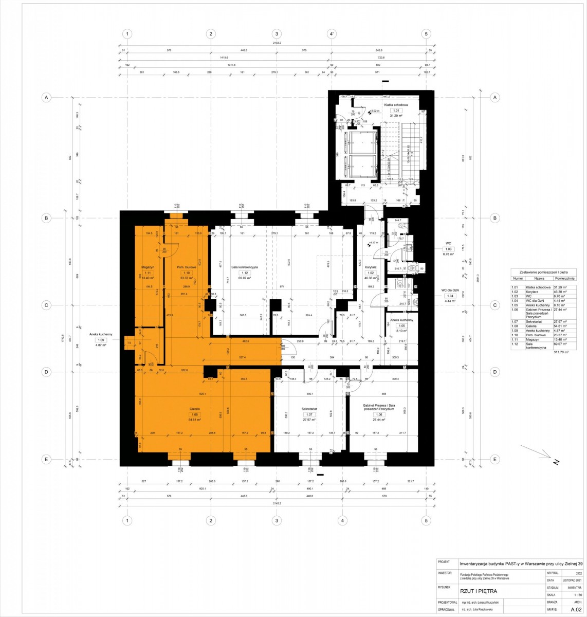
Powierzchnia 110.00 M2
Rok budowy:

Opis

Prezentuję Państwu wyjątkową ofertę wynajmu lokalu w centrum Warszawy, w pierwszym wysokościowcu dawnej Warszawy, słynącym z ciekawej historii, dzięki której do dzisiaj w potocznym języku przetrwał jako ,,PASTa”, usytuowanym pomiędzy Ogrodem Saskim a Pałacem Kultury i Nauki.
Lokal o powierzchni 110 m2 składa się z powierzchni biurowych przygotowanych do własnej aranżacji, dwóch toalet, kuchni. Bezpośrednio do poziomu lokalu dojeżdża winda.
Oferowany lokal do wynajmu może zostać zagospodarowany na cele biurowe, ewentualnie usługowe lub do innych celów biznesowych.
Niewątpliwym atutem lokalu jest również jego usytuowanie w budynku, wokół którego znajdują się liczne sklepy, restauracje, punkty usługowe, a przede wszystkim ciągi komunikacyjne w postaci linii autobusowych, tramwajowych i metra.

Minimalny okres najmu: 1 rok
Czynsz najmu: 7 700 zł brutto/ miesięcznie
Dodatkowo płatne opłaty eksploatacyjne: prąd, woda, ogrzewanie, ochrona, wywóz śmieci – 34 zł brutto/ m2
Kaucja – jednomiesięczny czynsz.

Link do spaceru wirtualnego:
https://tour.giraffe360.com/18e045156f8b4883b45d11b28bd50e1f/

Zapraszamy do kontaktu, celem omówienia szczegółów i umówienia prezentacji !

Informacje dodatkowe

Podobne ogłoszenia

Masz pytania?

Skontaktuj się z naszym doradzcą