L O A D I N G

Mieszkanie 4-pok. na Retkini z balkonami i garażem

Polska, Łódź, Armii Krajowej
Szczegóły
Pokoi 4
Rynek: Rynek wtórny
Rodzaj transakcji Na sprzedaż
ID ogłoszenia: 34964535802
Powierzchnia 122.49 M2
Rok budowy: 2002

Opis

Przestronne, dwupoziomowe mieszkanie o powierzchni 122,49 m², zlokalizowane na 3 i 4 piętrze w kameralnym bloku przy ulicy Armii Krajowej na Retkini. Idealne dla młodej rodziny ceniącej komfort i bliskość miejskich udogodnień.

Lokalizacja:
Łódź, dzielnica Polesie – Retkinia to spokojna okolica z bogato rozwiniętą infrastrukturą. W pobliżu znajdziesz wszystko, co potrzebne: szkoły, przedszkola, żłobek, sklepy, centrum handlowe – Galeria Retkińska, figloraj, bazarek, aptekę, przychodnię, bank, restauracje, fitness, basen, kort tenisowy oraz park i las.
Doskonała komunikacja autobusowa i tramwajowa zapewni szybki dojazd do centrum.

Opis mieszkania:
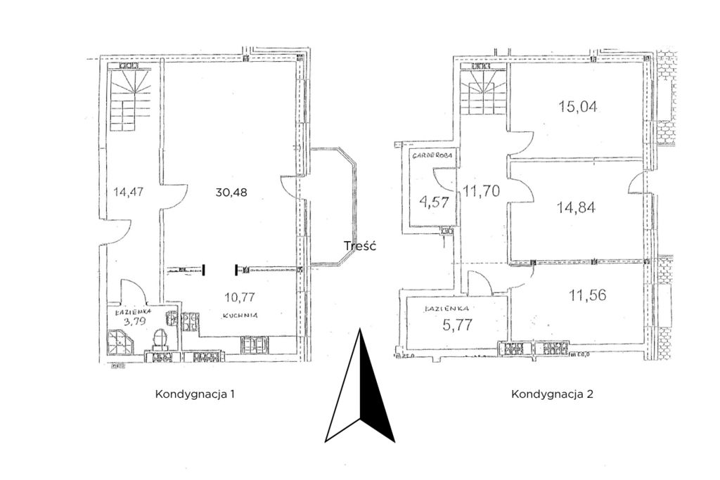
Mieszkanie składa się z dużego salonu, kuchni, łazienki i spiżarni na pierwszym poziomie oraz z 3 dużych i ustawnych sypialni, drugiej łazienki i garderoby na piętrze. Jest bardzo dobrze utrzymane, z drewnianymi oknami w bardzo dobrej kondycji, wychodzącymi na wschód, co zapewnia przyjemne doświetlenie. Wysokość pomieszczeń to 280 cm, co dodatkowo potęguje poczucie przestrzeni. Mieszkanie jest w pełni rozkładowe i dwupoziomowe, co daje wiele możliwości aranżacyjnych.

Salon o powierzchni 31 m² to przestrzeń idealna do rodzinnego wypoczynku. Oddzielna kuchnia jest w pełni wyposażona w meble na wymiar oraz sprzęt AGD: lodówkę, zamrażarkę, zmywarkę, piekarnik, okap, płytę grzewczą gazową i praktyczną spiżarkę. Dużo szafek do przechowywania. Do kuchni wchodzi się bezpośrednio z salonu.
Kuchnia po remoncie w zeszłym roku, urządzona bardzo praktycznie i nowocześnie.
Dwie łazienki w mieszkaniu to ogromny komfort codziennego użytkowania. Jedna na parterze z prysznicem oraz pralką, wc i umywalką, druga na piętrze z dużą wanną z hydromasażem, do tego różnego rodzaju oświetlenie przy którym można się zrelaksować, kolejne wc i umywalka oraz grzejnik drabinkowy. Zapewniają wygodę dla całej rodziny.

Dodatkowo mieszkanie posiada garderobę, szafy wbudowane we wnęce przedpokoju, spiżarnię oraz dwa klasyczne balkony, jeden w salonie, a drugi w jednej z sypialni na piętrze, które pozwolą Ci cieszyć się świeżym powietrzem i widokiem na panoramę miasta oraz podwórko.
Na ścianach w pokojach położona jest gładź, więc wystarczy przemalować wg własnego uznania, na podłodze położone panele, a w ostatnim pokoju na górze terakota, gdyż aktualnie pokój ten służy jako gabinet do pracy. Przedpokoje są przestronne, szerokie, gdzie również zmieszczą się duże szafy. Schody na górę drewniane i szerokie, co ułatwia zdecydowanie przemieszczanie się po piętrach.

Udogodnienia i bezpieczeństwo:
Mieszkanie jest wyposażone w antywłamaniowe drzwi oraz domofon i alarm, co podnosi poziom bezpieczeństwa. Ogrzewanie miejskie i ciepła woda z wodociągu miejskiego gwarantują wygodę i niskie koszty eksploatacji. Instalacje zostały wymienione, a podłogi wyłożono panelami i terakotą. Do mieszkania przynależy komórka lokatorska o powierzchni 6,49 m² oraz miejsce postojowe w hali garażowej podziemnej dodatkowo płatne 40 000 zł.

Podsumowanie:
To mieszkanie to doskonały wybór dla osób szukających przestrzeni, bezpieczeństwa oraz wygody w dobrze skomunikowanej i bogatej w udogodnienia okolicy. W pełni umeblowane i gotowe do zamieszkania wystarczy tylko wprowadzić się i cieszyć nowym domem.

Zadzwoń, aby umówić się na oglądanie i przekonać się osobiście o wyjątkowości tej oferty!

Informacje dodatkowe

Podobne ogłoszenia

Masz pytania?

Skontaktuj się z naszym doradzcą