L O A D I N G

Teodorowicza | 2 ogródki i 2 tarasy | parter

Polska, Warszawa, abp. Józefa Teodorowicza
Szczegóły
Pokoi 2
Rynek: Rynek wtórny
Rodzaj transakcji Na sprzedaż
ID ogłoszenia: 34964541948
Powierzchnia 56.20 M2
Rok budowy: 2015

Opis

Oferuję na sprzedaż wyjątkowe, komfortowe mieszkanie z dwoma ogródkami i dwoma tarasami, położone przy ul. Teodorowicza 3 w Warszawie.
To propozycja dla osób, które cenią przestrzeń, prywatność i kontakt z zielenią, a jednocześnie chcą mieszkać w dobrze skomunikowanej części miasta.
Idealne dla singla, pary lub osób posiadających zwierzęta — miejsce, w którym codzienność naturalnie przenosi się na zewnątrz, a ogród staje się przedłużeniem salonu.

Nieruchomość:
Mieszkanie usytuowane jest na parterze zadbanego budynku z garażem podziemnym. Dwustronna ekspozycja wschód-zachód zapewnia doskonałe doświetlenie wnętrz przez cały dzień, a jednocześnie komfort termiczny — latem mieszkanie pozostaje przyjemnie chłodne, zimą ciepłe, dzięki dobrej izolacji i sąsiedniej zabudowie.
Układ lokalu pozwala na wyraźny podział strefy prywatnej i dziennej, co znacząco podnosi komfort codziennego funkcjonowania.

Lokal:
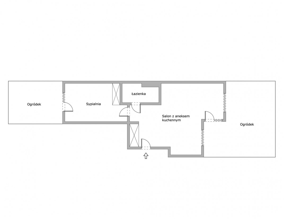
Powierzchnia mieszkania wynosi ok. 56,2 m², na którą składają się:
przestronna sypialnia (17 m²) z dużą szafą wnękową i wyjściem do kameralnego ogródka o powierzchni 14 m² — idealne miejsce na poranną kawę lub spokojny relaks,
reprezentacyjny salon z aneksem kuchennym i jadalnią o łącznej powierzchni ponad 34 m², z bezpośrednim wyjściem na taras i do większego ogródka (48 m²),
łazienka (5 m²) z wanną i funkcjonalną zabudową do przechowywania,
hol z dodatkową, pojemną szafą wnękową.

Wykończenie:
Wnętrze zostało wykończone z dbałością o jakość i trwałość. Na podłodze znajduje się dębowy parkiet, a drzwi wewnętrzne to solidne, drewniane skrzydła marki Porta — klasyczne i ponadczasowe rozwiązania, które dobrze się starzeją.

Dodatkowe atuty:
dwa tarasy o powierzchni 6 m² i 7 m²,
dwa prywatne ogródki: 14 m² i 48 m²,
ogromny potencjał aranżacyjny — przestrzeń na strefę wypoczynkową, ogród warzywny, miejsce zabaw dla pupila lub zielony azyl tylko dla siebie.

Miejsce postojowe w garażu podziemnym — dodatkowo płatne 65 000 zł (zakup nieobowiązkowy).

Lokalizacja:
Spokojna, zielona okolica z bardzo dobrą komunikacją:
ok. 400 m do dwóch przystanków autobusowych oraz przystanku tramwajowego,
szybki i wygodny dojazd do trasy oraz Mostu Południowego,
ok. 1,5 km do parku z pałacem oraz lasu — idealnego miejsca na spacery, jogging i rekreację,
liczne sklepy, restauracje i punkty usługowe w bezpośrednim sąsiedztwie,
centrum handlowe z kinem w odległości ok. 3 km.

Podsumowanie:
To propozycja dla osób, które szukają czegoś więcej niż standardowe mieszkanie — chcą przestrzeni, prywatności, zieleni i komfortu życia na co dzień, bez rezygnowania z miejskich udogodnień.

Zapraszam do kontaktu i na prezentację — to mieszkanie naprawdę warto zobaczyć na żywo.

Kompleksowa obsługa nieruchomości: sprzedaż, wynajem, kredyt i zarządzanie — wszystko w jednym miejscu.
Zadzwoń i sprawdź naszą ofertę.

Informacje dodatkowe

Podobne ogłoszenia

Masz pytania?

Skontaktuj się z naszym doradzcą