L O A D I N G

Gotowe I Po remoncie I Widok na Odrę I Centrum

Polska, Wrocław, Kazimierza Michalczyka
Szczegóły
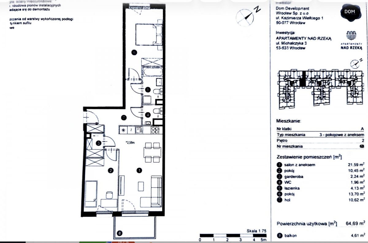
Pokoi 3
Rynek: Rynek wtórny
Rodzaj transakcji Na sprzedaż
ID ogłoszenia: 34964544128
Powierzchnia 64.67 M2
Rok budowy: 2024

Opis

Nowoczesny apartament z widokiem na Odrę w prestiżowej inwestycji Apartamenty nad Rzeką I Stare Miasto 

Rozkład mieszkania:

  • salon z widokiem na Odrę
  • 2 sypialnie
  • łazienka
  • przedpokój z miejscem do przechowywania

Atuty nieruchomości:

  • Spektakularny widok na Odrę
  • Prestiżowa lokalizacja – Stare Miasto
  • Nowe budownictwo o wysokim standardzie
  • Duże przeszklenia i bardzo dobre doświetlenie wnętrz
  • Bliskość terenów spacerowych i bulwarów nad rzeką
  • Winda i nowoczesne części wspólne
  • Komórka lokatorska oraz miejsce postojowe w cenie 

UKŁAD FUNKCJONALNY
Strefa dzienna

  • Przestronny salon z miejscem na część wypoczynkową i jadalnianą, z pięknym widokiem na Odrę.
  • Otwarta kuchnia.

Strefa prywatna

  • Sypialnia master z miejscem na dużą szafę.
  • Druga sypialnia idealna jako pokój dziecięcy, gabinet lub pokój gościnny.
  • Nowoczesna łazienka wykończona w wysokim standardzie.

Do mieszkania przynależy : komórka lokatorska w cenie 18 900 zł oraz miejsce postojowe w garażu podziemnym w cenie 45 000 zł.

OPIS I STANDARD
Apartament został wykończony w nowoczesnym stylu, z dbałością o detale i funkcjonalność.
Nowe instalacje, stolarka drzwiowa i podłogi. Duże przeszklenia zapewniają naturalne światło i wyjątkowy klimat wnętrza. Budynek „Apartamenty nad Odrą” zrealizowany przez Dom dewelopment – wysoka jakość części wspólnych oraz estetyka inwestycji.

LOKALIZACJA I OKOLICA
Inwestycja położona jest w sercu miasta, z jednoczesną bliskością natury i rzeki.

  • Rynek / Stare Miasto – 25 minut pieszo
  • Ostrów Tumski – 30 minut pieszo
  • Bulwary nad Odrą – 15 minut pieszo
  • Centrum handlowe – 2 minuty pieszo
  • Przystanek tramwajowy – 2 minuty pieszo
  • Skwer św. o. Damiana de Veuster – 7 minut pieszo
  • Zespół Szkół nr 18 – 5 minut pieszo
  • Główne arterie komunikacyjne (ul. Długa i Legnicka) – 1 minuta samochodem

To lokalizacja łącząca życie miejskie z relaksem nad wodą – w pobliżu restauracje, galerie sztuki, kina, teatry oraz centra biznesowe.

W NASZEJ OPINII
To apartament idealny dla osób ceniących prestiż, komfort i wyjątkowy widok.
Nowy, gotowy do zamieszkania, w jednej z najbardziej pożądanych lokalizacji Wrocławia – doskonały zarówno do zamieszkania, jak i jako inwestycja.

Informacje dodatkowe

Podobne ogłoszenia

Masz pytania?

Skontaktuj się z naszym doradzcą